| 物件詳細情報 |
| 中古住宅 | 松江市東津田町 |
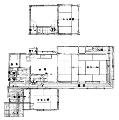
| 1,150万円 | 5DK |
| ▪売土地 (解体更地渡し売主負担) 可能です。 価格13,225,500円 (坪15万円) . |
| 整理番号 | 8095 | 土地権利 | 所有権 |
| 物件種別 | 中古住宅 | 地目 | 宅地 |
| 価格 | 1,150万円 | 都市計画 | 市街化区域 |
| 所在地 | 松江市東津田町 | 用途地域 | 第1種低層住居専用地域 |
| 交通 | 堂の前バス停より徒歩8分 | 建ぺい率/容積率 | 50% / 100% |
| 校区 | 津田小 (1000m) | 環境 | 住宅地 |
| 土地面積 | 291.50㎡ (88.17坪) | 現況 | 空家 |
| 建物面積 | 128.55㎡ (38.88坪) | 引渡 | 相談 |
| 構造 | 木造瓦葺2階建 | 接道状況 | 西側幅員5m公道に3m接面 |
| 築年月 | 1982年(昭和57年)2月新築 | 設備 | 電気・上水道 下水道・側溝 電気温水器 - |
| 間取り | 5DK |
| 取引態様 | 媒介 | 備考 | 前面は回転場での利用(所有は松江市) |
![]() |
| 社名 郵便番号 住所 |
株式会社ハウスプランニング 〒683-0067 鳥取県米子市東町327古矢ビル1F |
電話 メール ホームページ |
0859-35-3211 info@houseplanning.jp https://www.houseplanning.jp |